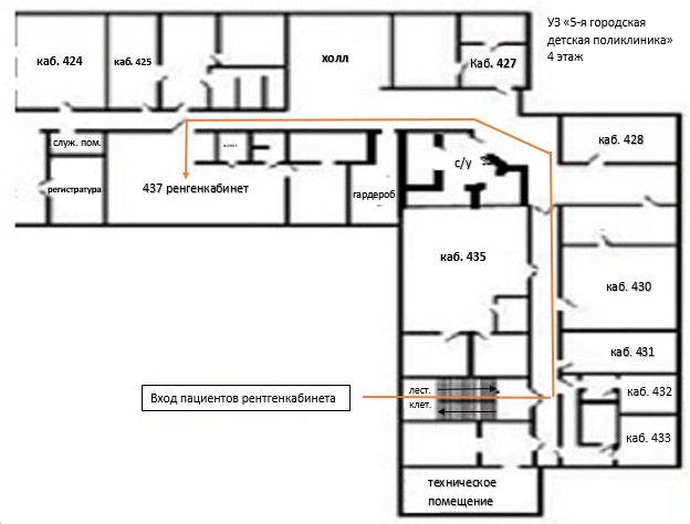
Маршрутизация пациентов с признаками острой респираторной инфекции из фильтра-бокса в рентгенологический кабинет
30.01.2026Маршрутизация пациентов с признаками острой респираторной инфекции из фильтра-бокса в рентгенологический кабинет
ЭТАЖ 4

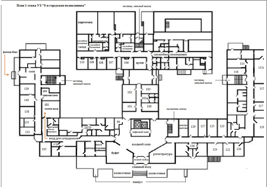
Маршрутизация пациентов с признаками острой респираторной инфекции в фильтр бокс


